旋流分离器在涂装,脱脂行业的应用
安装了旋流分离器以帮助清除脱脂釜中的溶剂后,铜产品公司通过以下方式减少了对溶剂回收系统的维护:
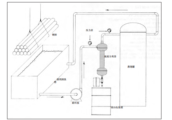
旋流分离器不仅可以去除98%的问题铜屑,铁屑,还可以提供回收溶剂的方便方法。整个过程是自动实现的
使用旋流分离器自动排污,定期将积累的固体冲洗到槽口中。
脱脂蒸馏器还用于将脏溶剂再生到可用状态。被油脂,油污染
清洗铜管后,再将铜屑和溶剂从泵中通过分离器
从蘸水罐到蒸馏桶(见图)。
在没有在安装旋流分离器分离器之前,每8个小时生产过程就有2个小时用于清洁
罐体仍然积聚了, 安装分离器立即将其减少到仅两个小时每个星期
分离器减少停机时间和维护的能力通过其方法得到了进一步增强
分离,使溶剂可以回收有价值的固体。
